Quadrilocale in vendita

Bracciano, Via di Cinquilla
€ 159.000
4 locali 4 locali
100 Mq 100 Mq
2 bagni 2 bagni

Quadrilocale in vendita

Bracciano, Via di Cinquilla

Descrizione annuncio

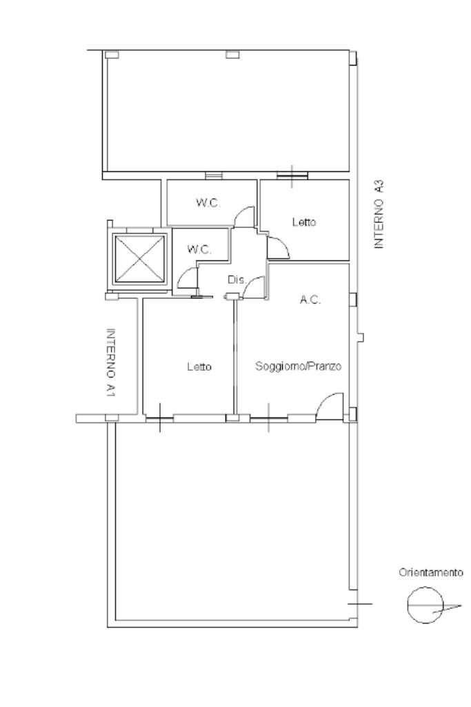
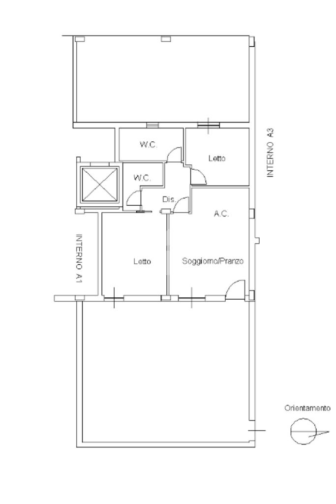
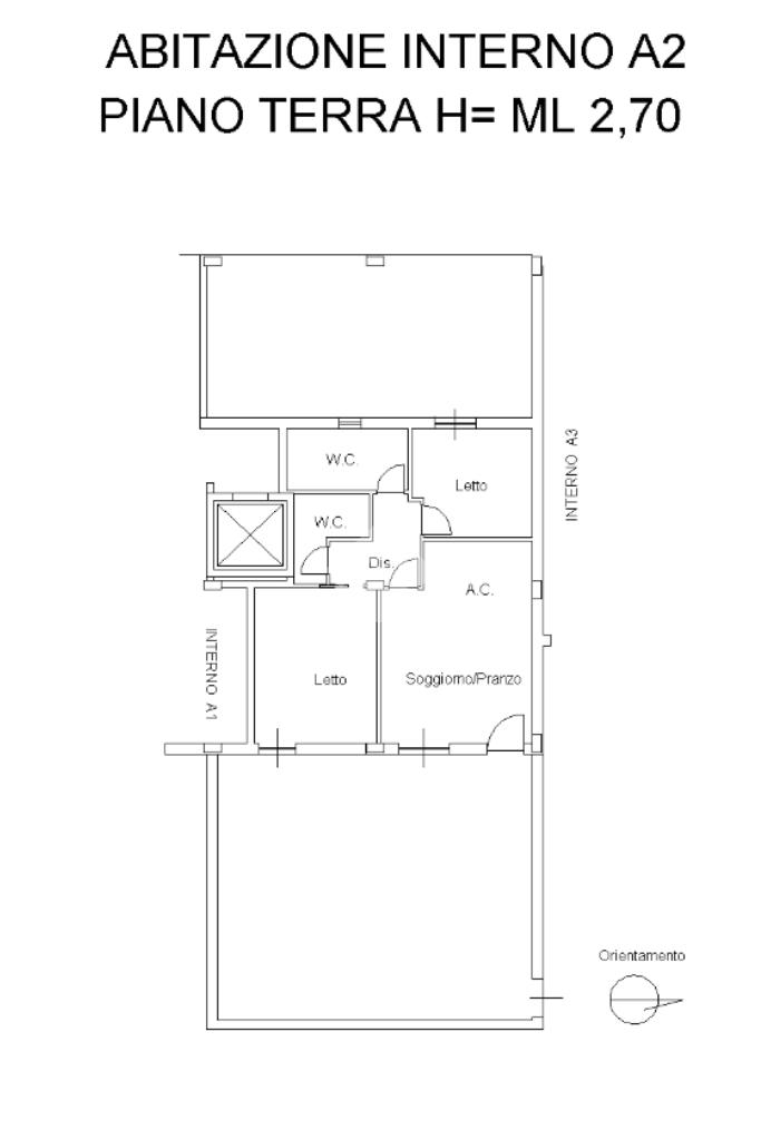
Bracciano Due – Piano terra con grande terrazzo abitabile

In una delle zone più servite di Bracciano Due, proponiamo in vendita un appartamento di 100 mq al piano terra, perfetto per chi cerca spazi comodi e vivibili.

All’interno troviamo un ampio soggiorno con angolo cottura, una pratica sala da pranzo, camera matrimoniale, cameretta e doppio bagno, di cui uno finestrato. Gli ambienti sono ben distribuiti e facilmente adattabili alle esigenze di una famiglia.

Il vero punto di forza di questa casa è l’enorme terrazzo abitabile di circa 100 mq, uno spazio indipendente e versatile che diventa il prolungamento naturale della zona giorno: ideale per pranzi e cene all’aperto, momenti di relax o per chi desidera far giocare i bambini in totale sicurezza.

La costruzione degli anni ’90 garantisce solidità e ambienti ampi, mentre il riscaldamento termoautonomo assicura praticità nella gestione. La posizione strategica, vicina a tutti i servizi, rende questa soluzione comoda per la vita quotidiana.

Se anche per te la metratura generosa e un terrazzo da vivere tutto l’anno fanno la differenza, contattaci subito per fissare un appuntamento!

Mostra tutto

Nelle vicinanze

Trasporto pubblico Trasporto pubblico
Bracciano
Bracciano
1,2 Km
Trasporto pubblico
200 m
Ospedale Padre Pio
Ospedale Padre Pio
710 m
Bracciano
2,4 Km
Scuole Scuole
Istituto di Istruzione Superiore "Luca Paciolo"
440 m
Liceo Scientifico Statale "Ignazio Vian"
620 m
Istituto Tecnico Economico Statale "Luca Paciolo"
720 m
Scuola secondaria di 1° grado "San Giovanni Bosco"
980 m
Scuola Elementare Statale "Tommaso Tittoni"
1,3 Km
Farmacia Farmacia
Parafarmacia Spaziofarma
170 m
Farmacia delle Palme
510 m
Parafarmacia Conad
530 m
Farmacia Morelli
1,3 Km
Farmacia Negri
1,4 Km
Ospedali Ospedali
Ospedale Padre Pio
950 m
Supermercati Supermercati
Carrefour express
170 m
Maury's
520 m
CRAI
520 m
Conad
550 m
In's Supermercati
690 m
Negozi Negozi
Peripezia
230 m
Negozi
240 m
5-Venticinque
390 m
La Mimosa 2
530 m
Golden point
570 m
Bar Bar
Flash Bar
830 m
Royal Bar
1,1 Km
Sky Cocktail Bar
1,3 Km
Bar Sabazio
1,4 Km
Birreria Toro Seduto
1,6 Km
Ristoranti Ristoranti
Ristorante Pizzeria L'Archetto
140 m
Meat - Pizzeria Griglieria
200 m
Sheng Long
750 m
Sushi Fiore
790 m
Crazy Bull Cafè Restaurant
860 m
Mostra tutto

Caratteristiche

Rif.:
61112547
Piano:
Terra con giardino di 4
Totale piani:
4
Terrazzi:
1
Camere da letto:
2
Arredamento:
Assente
Mostra tutto
Prezzo Prezzo
€ 159.000
Rata mutuo Rata mutuo
€ 750 / mese
Spese annue Spese annue
€ 500
Proponi il tuo prezzoProponi il tuo prezzo

Classe Energetica

G
G
G
G
G
G
G
G
G
EP invernale del fabbricato:
EP estiva del fabbricato:
Anno di costruzione:
1990
Riscaldamento:
Autonomo
Tipo impianto:
A radiatori
Tipo alimentazione:
Metano

Ti interessa visionare l'immobile?

Fissa un appuntamento  Fissa un appuntamento

Richiedi informazioni

Clicca su Leggi per aprire l'informativa
* Questi campi sono obbligatori

Calcola il tuo mutuo

Semplice e senza impegno
Anticipo

( % )
Mutuo

( % )

pochi semplici passi

inserisci i tuoi dati
Questionario completato
Grazie per aver richiesto un appuntamento senza impegno con un nostro Consulente del Credito e Assicurativo.

Hai inserito correttamente tutti i dati necessari e a breve riceverai una e-mail con un link da convalidare per inviare i tuoi dati.
Affiliato
Immobiliare Bracciano Tre Srl
Via Principe di Napoli, 48 00062 Bracciano (RM)

Il nostro staff


  • Matteo Saraconi
    Affiliato

  • Luca Cersosimo
    Collaboratore

  • Matilde Mognarelli
    Coordinatrice

  • Andrea Mazzuccato
    Responsabile

  • Matteo Schietroma
    Collaboratore

  • Eleonora Sanetti
    Collaboratrice

  • Aurora Tamanti
    Collaboratrice

  • Flavio Xhani
    Collaboratore
Via Principe di Napoli, 48 00062 Bracciano (RM)
Zona: Bracciano
Mostra su mappa
Affiliato
Immobiliare Bracciano Tre Srl
Via Principe di Napoli, 48 00062 Bracciano (RM)

2025 Tecnocasa Franchising S.p.A. - P. IVA 08365160152 - Via Monte Bianco 60/A 20089 Rozzano (MI). Ogni agenzia ha un proprio titolare ed è autonoma. Privacy policy | Policy utilizzo | Cookie policy