Quadrilocale in vendita

Bracciano, Traversa Campo Della Fiera
€ 175.000
3 locali 3 locali
72 Mq 72 Mq
1 bagno 1 bagno

Quadrilocale in vendita

Bracciano, Traversa Campo Della Fiera

Descrizione annuncio

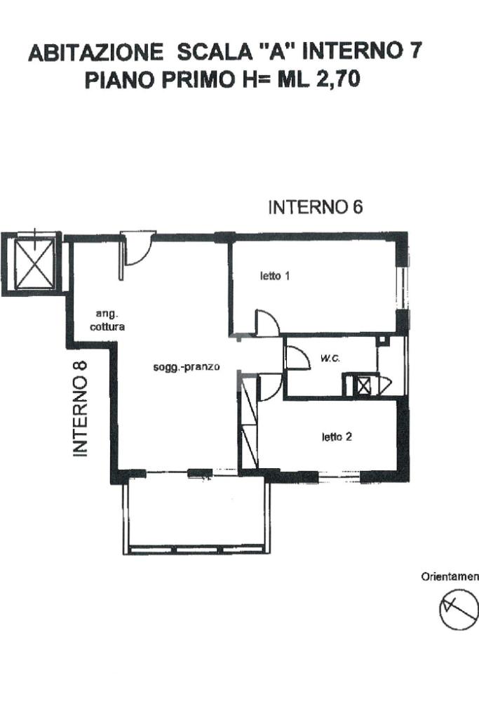
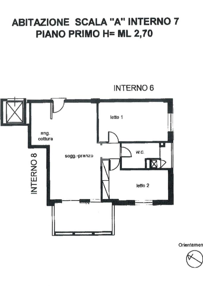
Appartamento di 72mq con balcone e posto auto a Bracciano 2

Proponiamo in vendita un appartamento di 72 mq, situato al primo piano di una palazzina del 2004 servita da ascensore, nel cuore di Bracciano 2 e a pochi passi da tutti i principali servizi. Una soluzione comoda e funzionale, ideale per chi cerca praticità e una posizione centrale.

La disposizione interna è semplice e ben organizzata: l’ingresso si apre sul soggiorno con angolo cottura e accesso diretto al balcone di pertinenza; un piccolo disimpegno conduce poi alla zona notte, composta da una camera matrimoniale, una cameretta e un bagno finestrato con vasca.

Tra i principali punti di forza spiccano la posizione centrale e ben servita, la luminosità degli ambienti e la comodità del posto auto all’interno del condominio privato, oltre alla presenza dell’ascensore che rende l’abitazione facilmente accessibile.

L’appartamento rappresenta una soluzione ideale sia come prima casa per chi desidera vivere in un contesto servito e ben collegato, sia come investimento grazie alla sua praticità e alla posizione strategica.

Contattaci subito per prenotare una visita e scoprire da vicino tutti i vantaggi di questo appartamento a Bracciano 2.

Mostra tutto

Nelle vicinanze

Trasporto pubblico Trasporto pubblico
Bracciano
Bracciano
1,0 Km
Trasporto pubblico
110 m
Ospedale Padre Pio
Ospedale Padre Pio
590 m
Bracciano
2,2 Km
Scuole Scuole
Istituto di Istruzione Superiore "Luca Paciolo"
380 m
Liceo Scientifico Statale "Ignazio Vian"
440 m
Istituto Tecnico Economico Statale "Luca Paciolo"
550 m
Scuola secondaria di 1° grado "San Giovanni Bosco"
810 m
Scuola Elementare Statale "Tommaso Tittoni"
1,1 Km
Farmacia Farmacia
Parafarmacia Spaziofarma
40 m
Farmacia delle Palme
580 m
Parafarmacia Conad
640 m
Farmacia Morelli
1,1 Km
Farmacia Negri
1,3 Km
Ospedali Ospedali
Ospedale Padre Pio
850 m
Supermercati Supermercati
Carrefour express
10 m
Maury's
340 m
In's Supermercati
590 m
CRAI
590 m
Conad
640 m
Negozi Negozi
Negozi
170 m
Peripezia
290 m
Il Forno
430 m
F. Market
440 m
5-Venticinque
470 m
Bar Bar
Flash Bar
660 m
Royal Bar
930 m
Sky Cocktail Bar
1,1 Km
Bar Sabazio
1,2 Km
Birreria Toro Seduto
1,4 Km
Ristoranti Ristoranti
Meat - Pizzeria Griglieria
30 m
Ristorante Pizzeria L'Archetto
100 m
Sheng Long
590 m
Crazy Bull Cafè Restaurant
690 m
Zero Zero Pizza
690 m
Mostra tutto

Caratteristiche

Rif.:
61118052
Piano:
1 di 3 con ascensore (Piano medio)
Posti auto:
1
Balconi:
1
Camere da letto:
2
Arredamento:
Assente
Mostra tutto
Prezzo Prezzo
€ 175.000
Rata mutuo Rata mutuo
€ 777 / mese
Spese annue Spese annue
€ 480
Proponi il tuo prezzoProponi il tuo prezzo

Classe Energetica

Questo immobile è esente da classe energetica
Anno di costruzione:
2004
Riscaldamento:
Autonomo
Tipo impianto:
A radiatori
Tipo alimentazione:
Metano

Ti interessa visionare l'immobile?

Fissa un appuntamento  Fissa un appuntamento

Richiedi informazioni

* Questi campi sono obbligatori

Calcola il tuo mutuo

Semplice e senza impegno
Anticipo

( % )
Mutuo

( % )

pochi semplici passi

inserisci i tuoi dati
Questionario completato
Grazie per aver richiesto un appuntamento senza impegno con un nostro Consulente del Credito e Assicurativo.

Hai inserito correttamente tutti i dati necessari e a breve riceverai una e-mail con un link da convalidare per inviare i tuoi dati.
Affiliato
Immobiliare Bracciano Tre Srl
Via Principe di Napoli, 48 00062 Bracciano (RM)

Il nostro staff


  • Matteo Saraconi
    Affiliato

  • Luca Cersosimo
    Collaboratore

  • Matilde Mognarelli
    Coordinatrice

  • Andrea Mazzuccato
    Responsabile

  • Matteo Schietroma
    Collaboratore

  • Eleonora Sanetti
    Collaboratrice

  • Flavio Xhani
    Collaboratore
Via Principe di Napoli, 48 00062 Bracciano (RM)
Zona: Bracciano
Mostra su mappa
Affiliato
Immobiliare Bracciano Tre Srl
Via Principe di Napoli, 48 00062 Bracciano (RM)

2025 Tecnocasa Franchising S.p.A. - P. IVA 08365160152 - Via Monte Bianco 60/A 20089 Rozzano (MI). Ogni agenzia ha un proprio titolare ed è autonoma. Privacy policy | Policy utilizzo | Cookie policy