Bilocale in vendita

Bracciano, Via Dei Tigli
€ 129.000
2 locali 2 locali
50 Mq 50 Mq
1 bagno 1 bagno

Bilocale in vendita

Bracciano, Via Dei Tigli

Descrizione annuncio

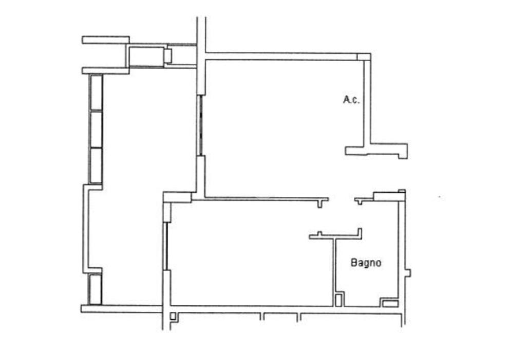
Bilocale con terrazzo abitabile e box auto - Via dei Tigli, Bracciano 2

Proponiamo in vendita un appartamento di circa 50 mq, posto al secondo piano con ascensore di una palazzina costruita nel 2010, situata nel cuore di Bracciano 2, in un contesto residenziale curato e ben servito.

L’abitazione si apre su un soggiorno con angolo cottura, luminoso e ben distribuito, con accesso diretto al terrazzo abitabile che collega anche la camera matrimoniale.
Il terrazzo, esposto a sud, regala luce naturale durante tutta la giornata e ospita un locale tecnico dotato di lavatrice, ideale come zona lavanderia.

La zona notte è composta da una camera matrimoniale e da un bagno con doccia doppia, rifinito con gusto e funzionalità.

A completare la proprietà troviamo un box auto di 14 mq, situato al piano seminterrato della palazzina, facilmente accessibile anche tramite ascensore.

La posizione, nel cuore di Bracciano 2, permette di raggiungere comodamente negozi, scuole, servizi e mezzi pubblici, rendendo questa soluzione perfetta sia come prima casa sia come investimento.

Un bilocale moderno, curato e dotato di ogni comfort, ideale per chi cerca comodità, luce e spazi esterni vivibili.

Contattaci per fissare una visita e scoprire di più su questa interessante opportunità a Bracciano 2!

Mostra tutto

Nelle vicinanze

Trasporto pubblico Trasporto pubblico
Bracciano
Bracciano
1,6 Km
Trasporto pubblico
290 m
Ospedale Padre Pio
Ospedale Padre Pio
1,5 Km
Bracciano
2,6 Km
Scuole Scuole
Istituto di Istruzione Superiore "Luca Paciolo"
560 m
Liceo Scientifico Statale "Ignazio Vian"
1,0 Km
Istituto Tecnico Economico Statale "Luca Paciolo"
1,2 Km
Scuola secondaria di 1° grado "San Giovanni Bosco"
1,4 Km
Scuola Elementare Statale "Tommaso Tittoni"
1,7 Km
Farmacia Farmacia
Farmacia delle Palme
480 m
Parafarmacia Conad
570 m
Parafarmacia Spaziofarma
880 m
Farmacia Morelli
1,7 Km
Farmacia Negri
1,9 Km
Ospedali Ospedali
Ospedale Padre Pio
1,7 Km
Supermercati Supermercati
Sacoph Gros
50 m
CRAI
470 m
Conad
520 m
Carrefour express
910 m
Maury's
1,1 Km
Negozi Negozi
La Mimosa 2
450 m
Carabetta
460 m
Golden point
530 m
5-Venticinque
570 m
Peripezia
690 m
Bar Bar
Flash Bar
1,4 Km
Royal Bar
1,6 Km
Sky Cocktail Bar
1,6 Km
Bar Sabazio
1,8 Km
Birreria Toro Seduto
2,0 Km
Ristoranti Ristoranti
Ristorante Pizzeria L'Archetto
840 m
Pizzeria 4 Castagni
920 m
Meat - Pizzeria Griglieria
940 m
Ristorante Etiope - Bethelehem Family
1,0 Km
Crazy Bull Cafè Restaurant
1,0 Km
Mostra tutto

Caratteristiche

Rif.:
61127103
Piano:
2 di 4 con ascensore (Piano medio)
Box:
1
Terrazzi:
1
Camere da letto:
1
Arredamento:
Assente
Mostra tutto
Prezzo Prezzo
€ 129.000
Rata mutuo Rata mutuo
€ 608 / mese
Spese annue Spese annue
€ 500
Proponi il tuo prezzoProponi il tuo prezzo

Classe Energetica

G
G
G
G
G
G
G
G
G
EP globale non rinnovabile:
257.17 kW h/m² anno
EP invernale del fabbricato:
EP estiva del fabbricato:
Anno di costruzione:
2009
Riscaldamento:
Autonomo
Tipo impianto:
A radiatori
Tipo alimentazione:
Metano

Ti interessa visionare l'immobile?

Fissa un appuntamento  Fissa un appuntamento

Richiedi informazioni

Clicca su Leggi per aprire l'informativa
* Questi campi sono obbligatori

Calcola il tuo mutuo

Semplice e senza impegno
Anticipo

( % )
Mutuo

( % )

pochi semplici passi

inserisci i tuoi dati
Questionario completato
Grazie per aver richiesto un appuntamento senza impegno con un nostro Consulente del Credito e Assicurativo.

Hai inserito correttamente tutti i dati necessari e a breve riceverai una e-mail con un link da convalidare per inviare i tuoi dati.
Affiliato
Immobiliare Bracciano Tre Srl
Via Principe di Napoli, 48 00062 Bracciano (RM)

Il nostro staff


  • Matteo Saraconi
    Affiliato

  • Luca Cersosimo
    Collaboratore

  • Matilde Mognarelli
    Coordinatrice

  • Andrea Mazzuccato
    Responsabile

  • Matteo Schietroma
    Collaboratore

  • Eleonora Sanetti
    Collaboratrice

  • Aurora Tamanti
    Collaboratrice

  • Flavio Xhani
    Collaboratore
Via Principe di Napoli, 48 00062 Bracciano (RM)
Zona: Bracciano
Mostra su mappa
Affiliato
Immobiliare Bracciano Tre Srl
Via Principe di Napoli, 48 00062 Bracciano (RM)

2025 Tecnocasa Franchising S.p.A. - P. IVA 08365160152 - Via Monte Bianco 60/A 20089 Rozzano (MI). Ogni agenzia ha un proprio titolare ed è autonoma. Privacy policy | Policy utilizzo | Cookie policy