Quadrilocale in vendita

Bracciano, Via odescalchi
€ 249.000
4 locali 4 locali
100 Mq 100 Mq
2 bagni 2 bagni

Quadrilocale in vendita

Bracciano, Via odescalchi

Descrizione annuncio

Affascinante dimora d’epoca a due passi dai servizi principali

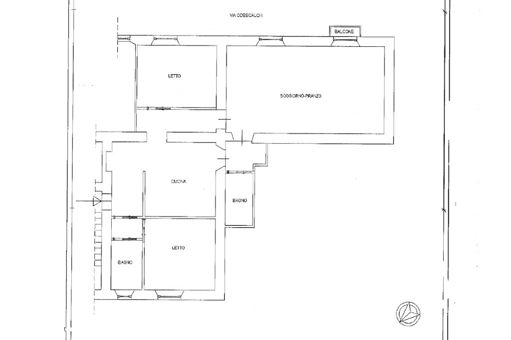
Nel cuore della città, in un contesto caratteristico e comodo a tutti i principali servizi, proponiamo in vendita un affascinante appartamento situato al primo piano di un edificio storico, recentemente rinnovato nel tetto e ben mantenuto nelle parti comuni.
Una soluzione unica, arricchita da elementi originali e da un salone di rappresentanza dal grande impatto scenico.

L’immobile si apre su un ingresso con angolo cottura dotato di condizionatore. Un pratico disimpegno conduce alla zona notte, composta da una camera luminosa e da una seconda camera anch’essa climatizzata.
Il bagno principale è finestrato e completo di doccia, mantenuto con cura e funzionalità.

La proprietà include inoltre un balconcino con un comodo bagnetto di servizio, perfetto come area di supporto esterna.

A completare gli spazi interni, un elegante corridoio e un magnifico salone di rappresentanza: un ambiente luminoso e prestigioso, impreziosito da soffitti affrescati, pavimento in marmo a scacchiera e camino in pietra. Dal salone si accede a un balconcino storico che conferisce ulteriore fascino all’abitazione.

Tra le caratteristiche tecniche troviamo pavimenti nuovi, infissi in PVC installati circa 15 anni fa e impianto elettrico rifatto nello stesso periodo. Il condominio è in buono stato e l’appartamento viene venduto con parte del mobilio presente in foto.

Questa soluzione rappresenta un’opportunità ideale per chi desidera vivere in un contesto di pregio o investire in un immobile dal carattere unico, arricchito da dettagli architettonici di grande valore.

Contattaci per fissare una visita e scoprire da vicino tutta l’eleganza e il potenziale di questo appartamento d’epoca.

Mostra tutto

Nelle vicinanze

Trasporto pubblico Trasporto pubblico
Bracciano
Bracciano
120 m
Trasporto pubblico
350 m
Ospedale Padre Pio
Ospedale Padre Pio
730 m
Bracciano
1,1 Km
Scuole Scuole
Scuola Elementare Statale "Tommaso Tittoni"
140 m
Scuola secondaria di 1° grado "San Giovanni Bosco"
260 m
Università Agraria di Bracciano
440 m
Istituto Tecnico Economico Statale "Luca Paciolo"
520 m
Liceo Scientifico Statale "Ignazio Vian"
670 m
Farmacia Farmacia
Farmacia Morelli
40 m
Farmacia Negri
210 m
Parafarmacia Spaziofarma
1,1 Km
Farmacia delle Palme
1,6 Km
Parafarmacia Conad
1,7 Km
Ospedali Ospedali
Ospedale Padre Pio
760 m
Supermercati Supermercati
CRAI
10 m
Carrefour express
160 m
Conad City
450 m
Fresco Market
670 m
Maury's
720 m
Negozi Negozi
Il Forno
90 m
Negozi
90 m
Corso Umberto
120 m
Outlet -Per Lui Per Lei
140 m
Fedeli
140 m
Bar Bar
Sky Cocktail Bar
80 m
Bar Sabazio
140 m
Royal Bar
170 m
Birreria Toro Seduto
380 m
Flash Bar
460 m
Ristoranti Ristoranti
Fantasy Food
90 m
Il Vagone
110 m
Fraschetta La Moretta
180 m
Sora Tuta
210 m
Al Vecchio Ponte
220 m
Mostra tutto

Caratteristiche

Rif.:
61152881
Piano:
1 di 3 (Piano basso)
Balconi:
2
Camere da letto:
2
Arredamento:
Parziale
Condizionamento:
Autonomo
Mostra tutto
Prezzo Prezzo
€ 249.000
Rata mutuo Rata mutuo
€ 1.174 / mese
Spese annue Spese annue
€ 0
Proponi il tuo prezzoProponi il tuo prezzo

Classe Energetica

Questo immobile è esente da classe energetica
Anno di costruzione:
1967
Riscaldamento:
Autonomo
Tipo impianto:
A radiatori
Tipo alimentazione:
Metano

Ti interessa visionare l'immobile?

Fissa un appuntamento  Fissa un appuntamento

Richiedi informazioni

Clicca su Leggi per aprire l'informativa
* Questi campi sono obbligatori

Calcola il tuo mutuo

Semplice e senza impegno
Anticipo

( % )
Mutuo

( % )

pochi semplici passi

inserisci i tuoi dati
Questionario completato
Grazie per aver richiesto un appuntamento senza impegno con un nostro Consulente del Credito e Assicurativo.

Hai inserito correttamente tutti i dati necessari e a breve riceverai una e-mail con un link da convalidare per inviare i tuoi dati.
Affiliato
Immobiliare Bracciano Tre Srl
Via Principe di Napoli, 48 00062 Bracciano (RM)

Il nostro staff


  • Matteo Saraconi
    Affiliato

  • Luca Cersosimo
    Collaboratore

  • Matilde Mognarelli
    Coordinatrice

  • Andrea Mazzuccato
    Responsabile

  • Eleonora Sanetti
    Collaboratrice

  • Aurora Tamanti
    Collaboratrice

  • Flavio Xhani
    Collaboratore
Via Principe di Napoli, 48 00062 Bracciano (RM)
Zona: Bracciano
Mostra su mappa
Affiliato
Immobiliare Bracciano Tre Srl
Via Principe di Napoli, 48 00062 Bracciano (RM)

2026 Tecnocasa Franchising S.p.A. - P. IVA 08365160152 - Via Monte Bianco 60/A 20089 Rozzano (MI). Ogni agenzia ha un proprio titolare ed è autonoma. Privacy policy | Policy utilizzo | Cookie policy