Villa a schiera centrale in vendita

Bracciano, Via di Cotognola
€ 169.000
Prezzo aggiornato
4 locali 4 locali
100 Mq 100 Mq
2 bagni 2 bagni

Villa a schiera centrale in vendita

Bracciano, Via di Cotognola

Descrizione annuncio

Bracciano – Via di Cotognola
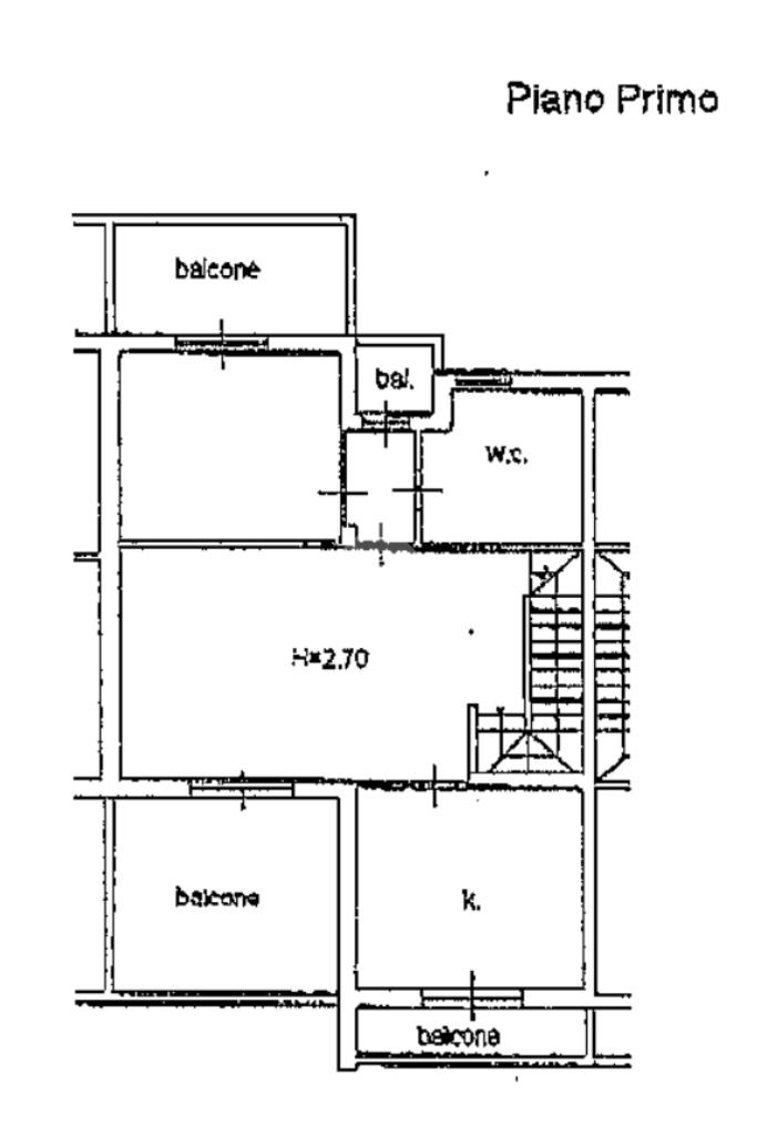
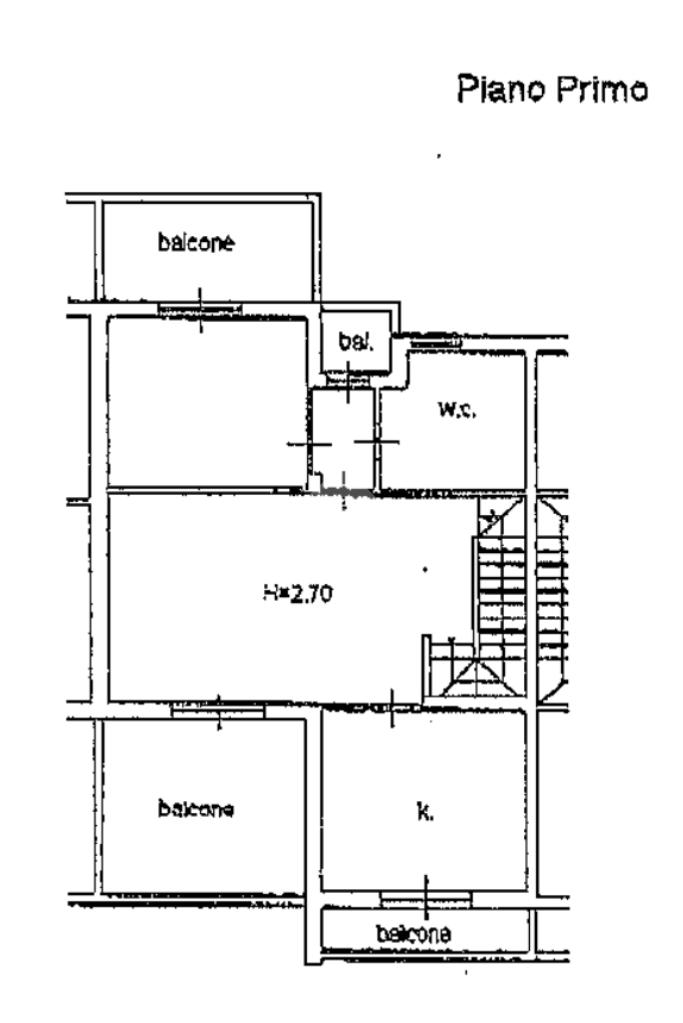
Appartamento su tre livelli di 100 mq con terrazzi abitabili

Proponiamo in vendita un luminoso appartamento di circa 100 mq disposto su tre livelli, situato in una zona tranquilla e ben servita di Bracciano, a pochi minuti dal centro e dal lago.

L’immobile si distingue per gli ampi spazi interni e per la presenza di più terrazzi e balconi, che garantiscono ottima luminosità e vivibilità in ogni ambiente.

L’accesso avviene da scala privata al piano terra, che conduce al primo livello dove troviamo un ampio soggiorno con uscita su un terrazzo abitabile, ideale per momenti di relax o per pranzi e cene all’aperto.
La cucina è separata e abitabile, dotata di balcone privato con caldaia, mentre la zona notte include una camera matrimoniale con balcone e un bagno finestrato.

Al livello superiore, collegato da una comoda scala interna, si apre una spaziosa camera mansardatamolto alta e luminosa – con accesso diretto al terrazzo panoramico e un secondo bagno a servizio del piano.

Tra i punti di forza dell’immobile spiccano la tripla distribuzione dei livelli, la doppia esposizione e la funzionalità degli spazi, che lo rendono una soluzione accogliente e versatile, ideale per chi desidera una casa con ampi spazi esterni e una vista aperta nel verde di Bracciano.

Perfetta come prima abitazione per famiglie o coppie, ma anche come residenza di villeggiatura a pochi passi dal lago e dal centro.

Contattaci per fissare una visita e scoprire tutte le potenzialità di questo appartamento su tre livelli in Via di Cotognola!

Mostra tutto

Nelle vicinanze

Trasporto pubblico Trasporto pubblico
Bracciano
Bracciano
450 m
Trasporto pubblico
290 m
Ospedale Padre Pio
Ospedale Padre Pio
330 m
Bracciano
1,5 Km
Scuole Scuole
Scuola secondaria di 1° grado "San Giovanni Bosco"
240 m
Istituto Tecnico Economico Statale "Luca Paciolo"
270 m
Scuola Elementare Statale "Tommaso Tittoni"
380 m
Liceo Scientifico Statale "Ignazio Vian"
460 m
Università Agraria di Bracciano
650 m
Farmacia Farmacia
Farmacia Morelli
400 m
Farmacia Negri
550 m
Parafarmacia Spaziofarma
790 m
Farmacia delle Palme
1,3 Km
Parafarmacia Conad
1,4 Km
Ospedali Ospedali
Ospedale Padre Pio
410 m
Supermercati Supermercati
In's Supermercati
410 m
CRAI
410 m
Maury's
420 m
Conad City
420 m
Carrefour express
490 m
Negozi Negozi
Antonelli Alimentari
240 m
F. Market
310 m
Il Forno
320 m
Fedeli
420 m
Corso Umberto
460 m
Bar Bar
Flash Bar
90 m
Royal Bar
230 m
Sky Cocktail Bar
450 m
Bar Sabazio
510 m
Birreria Toro Seduto
710 m
Ristoranti Ristoranti
Pizza Pazza a Pezzi
50 m
Sheng Long
170 m
Fantasy Food
330 m
Il Vagone
350 m
Zero Zero Pizza
390 m
Mostra tutto

Caratteristiche

Rif.:
61126261
Piano:
1 di 3 (Piano su più livelli)
Balconi:
3
Terrazzi:
2
Camere da letto:
2
Arredamento:
Assente
Mostra tutto
Prezzo Prezzo
€ 169.000
Rata mutuo Rata mutuo
€ 797 / mese
Spese annue Spese annue
€ 600
Proponi il tuo prezzoProponi il tuo prezzo

Classe Energetica

G
G
G
G
G
G
G
G
G
EP globale non rinnovabile:
166.28 kW h/m² anno
EP globale rinnovabile:
166.28 kW h/m² anno
EP invernale del fabbricato:
EP estiva del fabbricato:
Anno di costruzione:
1995
Riscaldamento:
Autonomo
Tipo impianto:
A radiatori
Tipo alimentazione:
Metano

Prezzo ridotto di €1 (6%%)

Ti interessa visionare l'immobile?

Fissa un appuntamento  Fissa un appuntamento

Richiedi informazioni

Clicca su Leggi per aprire l'informativa
* Questi campi sono obbligatori

Calcola il tuo mutuo

Semplice e senza impegno
Anticipo

( % )
Mutuo

( % )

pochi semplici passi

inserisci i tuoi dati
Questionario completato
Grazie per aver richiesto un appuntamento senza impegno con un nostro Consulente del Credito e Assicurativo.

Hai inserito correttamente tutti i dati necessari e a breve riceverai una e-mail con un link da convalidare per inviare i tuoi dati.
Affiliato
Immobiliare Bracciano Tre Srl
Via Principe di Napoli, 48 00062 Bracciano (RM)

Il nostro staff


  • Matteo Saraconi
    Affiliato

  • Luca Cersosimo
    Collaboratore

  • Matilde Mognarelli
    Coordinatrice

  • Andrea Mazzuccato
    Responsabile

  • Matteo Schietroma
    Collaboratore

  • Eleonora Sanetti
    Collaboratrice

  • Aurora Tamanti
    Collaboratrice

  • Flavio Xhani
    Collaboratore
Via Principe di Napoli, 48 00062 Bracciano (RM)
Zona: Bracciano
Mostra su mappa
Affiliato
Immobiliare Bracciano Tre Srl
Via Principe di Napoli, 48 00062 Bracciano (RM)

2025 Tecnocasa Franchising S.p.A. - P. IVA 08365160152 - Via Monte Bianco 60/A 20089 Rozzano (MI). Ogni agenzia ha un proprio titolare ed è autonoma. Privacy policy | Policy utilizzo | Cookie policy