Villa singola in vendita

Bracciano, Via della acquarelle - Vicarello
€ 950.000
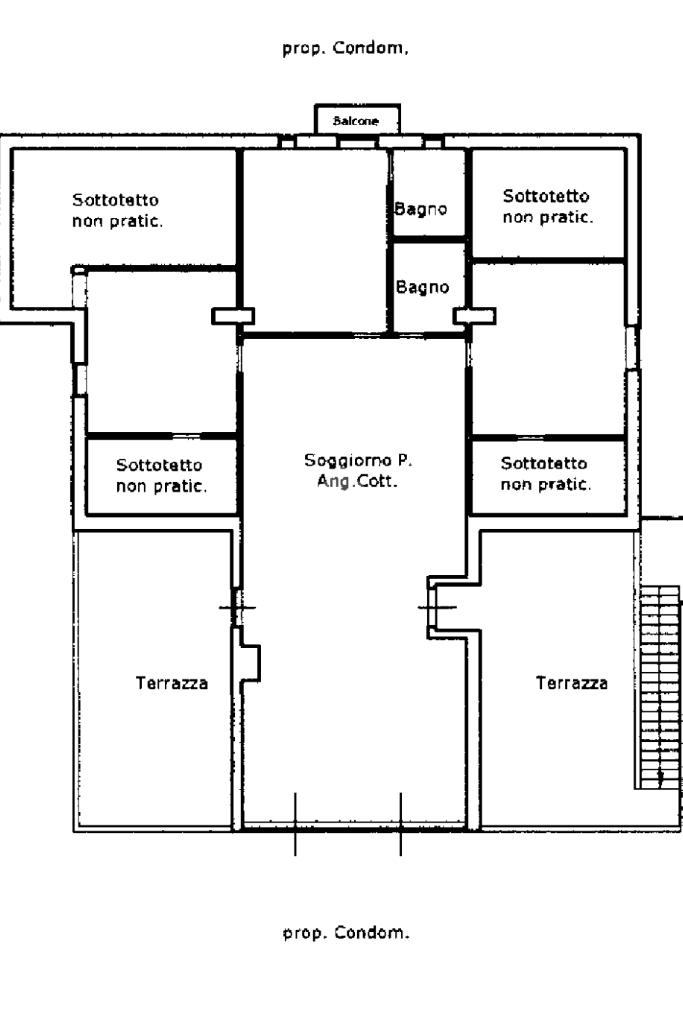
16 locali 16 locali
450 Mq 450 Mq
6 bagni 6 bagni

Villa singola in vendita

Bracciano, Via della acquarelle - Vicarello

Descrizione annuncio

Villa indipendente con vista lago dominante, terrazzi e parco pianeggiante – una proprietà esclusiva a Vicarello

In una posizione privilegiata, a pochi minuti da Trevignano Romano, proponiamo una villa indipendente progettata per vivere la luce e il panorama del Lago di Bracciano da ogni livello.
Un’immobile raro sul mercato: tre piani completamente fuori terra, ognuno con ingresso indipendente e un proprio spazio esterno vivibile. La soluzione ideale per chi cerca privacy, comodità e un contesto di pregio, oppure per chi desidera una residenza adattabile anche a uso ricettivo di charme.

Il parco pianeggiante di circa 4.500 mq, curato e riservato, circonda la villa e permette di vivere il verde in totale tranquillità, senza rinunciare alla vicinanza ai servizi. Gli spazi interni:

Piano terra: ampio portico abitabile con accesso diretto al giardino, perfetto per la vita all’aperto in ogni stagione.Piano intermedio: grande terrazzo coperto perimetrale, una vera estensione della zona giorno che amplifica luminosità e vivibilità quotidiana.Ultimo piano mansardato: due terrazzi panoramici dai quali la vista si apre sul lago, sul Castello Odescalchi e sui profili verdi che circondano la proprietà.

Perché è una proprietà unica?

Posizione dominante con vista lago ampia e scenografica.Terreno completamente pianeggiante, raro in zona.Architettura studiata per regalare panorami e luce naturale da ogni piano.Tre livelli indipendenti, perfetti per grandi famiglie, più nuclei, ospitalità, o per chi desidera un’abitazione con spazi autonomi per lavoro e vita privata.Contesto esclusivo, ideale per un mercato che cerca residenze di livello, immobili di rappresentanza o seconde case di grande fascino.

Una villa che unisce posizione, privacy e una vista impareggiabile.

Contattaci per scoprire dal vivo il potenziale e l'unicità di questa proprietà.

Mostra tutto

Nelle vicinanze

Trasporto pubblico Trasporto pubblico
Trevignano Romano
2,6 Km
Ricariche auto elettriche Ricariche auto elettriche
Trevignano Platani | EnelX
1,7 Km
Trevignano Via Roma | EnelX
2,1 Km
Trevignano al Molo | EnelX
2,6 Km
Scuole Scuole
Istituto Comprensivo Statale “Tommaso Silvestri”
2,5 Km
Farmacia Farmacia
Farmapoint
2,0 Km
Farmacia Amirkhanian
2,5 Km
Supermercati Supermercati
Tuodì
2,0 Km
Carrefour
2,0 Km
Carrefour Express
2,5 Km
Negozi Negozi
Stefanelli
2,5 Km
Alimentari
2,8 Km
Bar Bar
Bar
1,4 Km
Ristoranti Ristoranti
Ristoranti
1,1 Km
Pizzeria Il Prato
1,3 Km
La casina bianca
1,3 Km
Ristorante Per Passione
1,4 Km
Il viale
1,5 Km
Mostra tutto

Caratteristiche

Rif.:
61147625
Piano:
Su più livelli di 3
Totale piani:
3
Posti auto:
2
Balconi:
3
Terrazzi:
2
Mostra tutto
Prezzo Prezzo
€ 950.000
Rata mutuo Rata mutuo
€ 4.479 / mese
Spese annue Spese annue
€ 0
Proponi il tuo prezzoProponi il tuo prezzo

Classe Energetica

D
D
D
D
D
D
D
D
D
EP invernale del fabbricato:
EP estiva del fabbricato:
Anno di costruzione:
1988
Riscaldamento:
Autonomo
Tipo impianto:
A radiatori
Tipo alimentazione:
Metano

Ti interessa visionare l'immobile?

Fissa un appuntamento  Fissa un appuntamento

Richiedi informazioni

Clicca su Leggi per aprire l'informativa
* Questi campi sono obbligatori

Calcola il tuo mutuo

Semplice e senza impegno
Anticipo

( % )
Mutuo

( % )

pochi semplici passi

inserisci i tuoi dati
Questionario completato
Grazie per aver richiesto un appuntamento senza impegno con un nostro Consulente del Credito e Assicurativo.

Hai inserito correttamente tutti i dati necessari e a breve riceverai una e-mail con un link da convalidare per inviare i tuoi dati.
Affiliato
Immobiliare Bracciano Tre Srl
Via Principe di Napoli, 48 00062 Bracciano (RM)

Il nostro staff


  • Matteo Saraconi
    Affiliato

  • Luca Cersosimo
    Collaboratore

  • Matilde Mognarelli
    Coordinatrice

  • Andrea Mazzuccato
    Responsabile

  • Matteo Schietroma
    Collaboratore

  • Eleonora Sanetti
    Collaboratrice

  • Aurora Tamanti
    Collaboratrice

  • Flavio Xhani
    Collaboratore
Via Principe di Napoli, 48 00062 Bracciano (RM)
Zona: Bracciano
Mostra su mappa
Affiliato
Immobiliare Bracciano Tre Srl
Via Principe di Napoli, 48 00062 Bracciano (RM)

2025 Tecnocasa Franchising S.p.A. - P. IVA 08365160152 - Via Monte Bianco 60/A 20089 Rozzano (MI). Ogni agenzia ha un proprio titolare ed è autonoma. Privacy policy | Policy utilizzo | Cookie policy